Les annonces
Retour à ma recherche
Description du bien
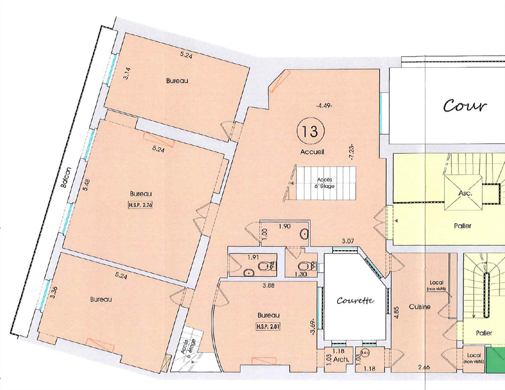
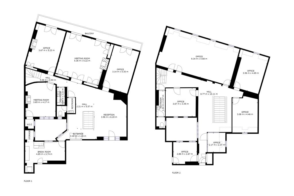
Situés entre la Place de l'Opéra et la place de la Bourse, dans un immeuble ancien de bon standing, à louer bureaux d'une surface de 273m² en duplex au 5ème et 6ème étage avec ascenseur. Les locaux se composent d'une entrée-réception desservant au 5ème étage, 2 bureaux et une salle de réunion sur rue avec balcon filant et un bureau sur cour. Au 6ème étage (relié par un escalier interieur) 1 open-space, 4 bureaux et une petite salle de réunion. Une cuisine et bloc sanitaire. Climatisation, câblage informatique, fibre optique.
Bail 3/6/9 ans. Disponible au 1er Décembre 2021.
Visite virtuelle : nous contacter
Prestations : Ascenseur.Balcon filant.Chauffage individuel gaz.Cuisine.escalier intérieur.cablage informatique
A deux pas de la Place de l'Opéra, beaux bureaux en duplex
Type de bien : Bureau
Surface : 273 m²
Ville : Paris
Ref : 10199370
13 552 € /mois charges comprises
dont 1 267€ de chargesHonoraires : non renseignés
Bail 3/6/9 ans. Disponible au 1er Décembre 2021.
Visite virtuelle : nous contacter
Prestations : Ascenseur.Balcon filant.Chauffage individuel gaz.Cuisine.escalier intérieur.cablage informatique
Caractéristiques
Cave
Diagnostiques
Date de DPE non renseignée
Ce bien vous intéresse ?
Contactez l'agence CONSULT IM,nous vous répondons rapidement
Contactez l'agenceL'agence








